双效强制循环蒸发器
常用型号规格:NQZ02-XXXX-水份蒸发量(t/h):2、4、5、6、8、9、11......
单效强制循环蒸发器
常用型号规格:NQZ01-XXXX-水份蒸发量(t/h):1、1.5、2......
高浓度蒸发浓缩技术
● 结晶蒸发技术
● 热处理蒸发技术
● 强制循环
● 播种技术
采用大流量泵使物料在换热面高速流动的蒸发器,传热元件包括管式、板式两种换热结构。

适用范围
适用于高浓缩、高粘度,含不溶性固形物等物料进行蒸发浓缩结晶。
主要特点
●浓缩比大,强制循环式,使粘度较大的料液容易流动蒸发。
●蒸发器通过强制循环,在管内受热均匀,可防止"干壁" 现象。
●缺点主要是泵的流量大,电耗相对较高;同时由于泵流量大引起设备震动大、且必须整体承重于厂房或钢结构支撑架上,导致厂房或钢结构支撑的投资也较大。
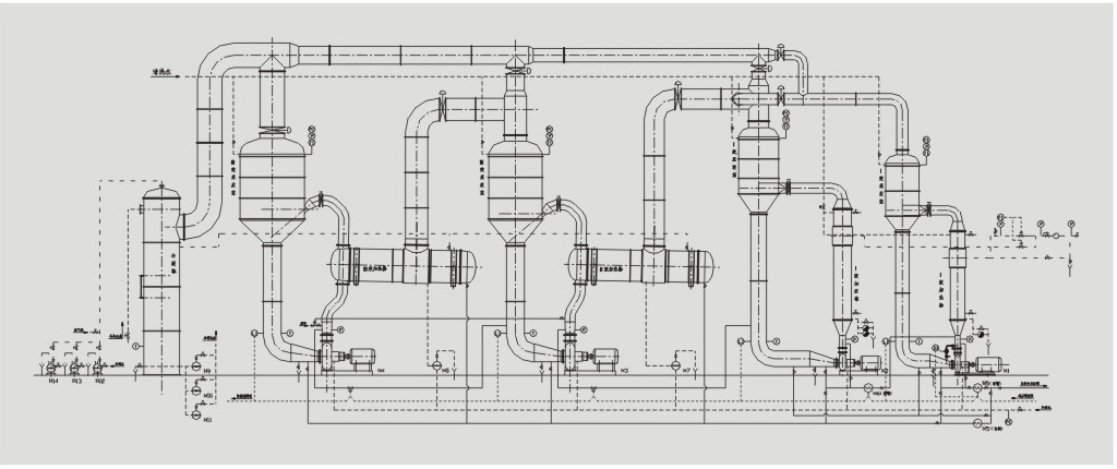
系统组成
蒸发器、分离器(结晶器)、冷凝器、循环泵、效间泵或过料调节阀、真空及排水系统、分汽缸、操作平台、电器仪表控制柜及阀门、管路等系统组成。
三效四段强制循环蒸发器流程示意图
